close
1/3
To begin your free appraisal, please tell us a few details about yourself. All fields are required.
Continue
2/3
We'll send your appraisal to this address:
Continue
arrow right
3/3
Where is your property located?
arrow right
close
Thank you!
Your submission has been received!
Close
Oops! Something went wrong while submitting the form.

Unit 2, 33 Grassways Avenue, Pakuranga, Auckland

$
540
p/w
Available:
20 Mar 2026
2
1
1
1
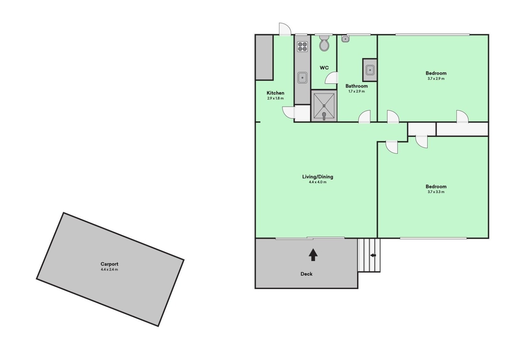
This lovely and well-presented two-bedroom unit is now available to rent in a convenient Pakuranga location. Close to local shops, motorway access, and zoned for good schools, the property offers comfortable and practical living. Property Features: - 2 good-sized bedrooms - Tidy and functional kitchen with ventilation - Spacious lounge area - Bathroom with shower, plus separate toilet and laundry area - Heat pump for year-round comfort - Sunny front deck – perfect for enjoying the warmer months - 1 undercover car park The home would suit a single professional needing a home office, a professional couple, or a small family of up to three people. Total Move in Costs: $2700 (Includes: four weeks’ bond, plus first weeks rent). To book a viewing: Please click on the "Book a Viewing" button. Alternatively please visit: https://renti.co/browse/the-rent-shop-ltd to register your details. It is important you register your details for a viewing so we can keep you updated, as viewings maybe cancelled if there are no attendees registered. To apply: Please click on ‘Apply for this property’. Alternatively please visit: https://renti.co/browse/the-rent-shop-ltd
Get in touch to book a viewing
phone icon
0123 456 789
Unit 2, 33 Grassways Avenue, Pakuranga, Auckland

Pakuranga Heights, 2 bedrooms

Unit 2, 33 Grassways Avenue, Pakuranga, Auckland
No items found.